Description
American Specialties Inc. ASI-0457 C-Fold Paper Towel Dispenser
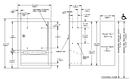
Recessed Paper Towel Dispenser shall hold and dispense 475 standard multi-fold or 350 standard C-fold paper towels. Towel dispenser, door, frame and cabinet shall be fabricated of alloy 18-8 stainless steel, type 304, 22 gauge. All exposed surfaces shall be No. 4 satin finish and be protected during shipment with a PVC film easily removable after installation. Towel dispensing slot shall have a fully hemmed-in rolled edge for snag-free dispensing and user safety.
Door shall be fabricated in double-pan construction with a fiberboard filler and shall be attached to cabinet at side with a full length 3/16 in.′ dia. (5mm) stainless steel multi-staked piano hinge and be held closed with a tumbler lock keyed alike to other ASI Washroom Equipment. Face trim shall be 1 in. (25.4mm) wide formed from one piece with no mitres, welding or open seams and have 1/4 in. (6.35mm) square return to wall. Structural assembly of all components shall be of welded construction.
SPECIFICATIONS
Download Spec Sheet
