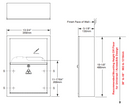
Description
Satin-finish stainless steel. Door equipped with full-length stainless steel piano-hinge at bottom; swings down for easy replacement of sharps container. Holds BD Brand Sharps Collector, 5.4 Qt, part number 305443.
Cabinet: Heavy gauge stainless steel. All welded construction.
Door: 22 gauge stainless steel with exposed surfaces in #4 satin finish. Heavy-duty stainless steel piano-hinge. Tumbler lock keyed like other Bobrick accessories.
Flange: 22 gauge stainless steel beveled flange with exposed surfaces in #4 satin finish. One-piece seamless construction, 1" wide with ¼" return.
Skirt: 18-8, type-304, 22-gauge (0.8mm) stainless steel with satin-finish.
Container: BD Brand (Becton, Dickinson and Company) Sharps Collector, 5.4 Qt, part number 305443 (not furnished by manufacturer).
OPERATION: Needle disposal unit installed/removed by locked hinged door. Needle disposal unit supplied by others. Door must open down 180° for installation /removal of needle disposal.

