Description
American Specialties ASI 0032 Partitions Mounted Toilet Paper Dispensers
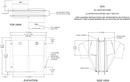
Partition Mounted Dual Twin Hide-A-Roll Toilet Paper Dispenser shall hold and dispense four (4) standard or four (4) 5-1/4 inch diameter (Ø133) 1800 sheet tissue rolls and shall have doors, door frames, and dispensing mechanism guide tracks fabricated of 18 gauge type 304 stainless steel alloy 18-8. Cabinet bodies and mounting flanges shall be 22 gauge same grade. All exposed surfaces shall be No 4 satin finish and be protected during shipment with PVC film easily removable after installation. Internal mechanism levers shall be fabricated of molded high-impact resistant plastic for smooth operation. Structural assembly of body and door components shall be of welded construction. Door hinges shall be heavy-duty stainless steel 3/16 inch diameter (Ø4.8) rivets. Doors shall be held closed with tumbler locks keyed alike to other ASI washroom equipment. Cabinet shall include theft and vandal resistant rollers that shall be of molded high-impact resistant plastic with integral molded-in plated steel endpins and four (4) rollers [p/n R-004] shall be supplied.
SPECIFICATIONS
Download Spec Sheet
