Description
Download Spec Sheet
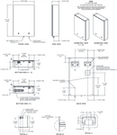
- 0661-1 has “AIR” and “SOAP” legends - icons: Hands-Free Liquid Soap Dispenser & 110-120V Automatic Dryer Model № 0196-1 with HEPA filter
-
Frameless Mirror Cabinet
- Liquid Soap Dispenser
- Hand Dryer with HEPA Filter
ASI’s Velare™ Behind the Mirror (BTM) is designed for elegance and safety in mind, concealing consumables in a cabinet made from type 304 stainless steel. The cabinet features a mirrored door with backlit icons that indicate functions provided from the bottom panel of each module. Mirror is made from 1/4" (6 mm) thick frameless tempered glass conforming to ASTM C-1048 with pencil edges and eased corners with SS sheet intermediate stiffener and SS back plate with integral welded support mounts, hinge and lock keeper.
The mirrored door is attached to the cabinet using a full width 3/16" diameter (Ø4.8) concealed piano hinge and is secured shut using a tumbler lock and key. Support for mirror door is provided by twin damped gas springs to assist opening from 15° to 90° with soft-stop cushion at full open and when lowering to full closed position for locking.
This wall mounted stainless steel cabinet conceals a hands-free automatic liquid soap dispenser with a 1.5 gal (6 L) capacity and a high-speed hand dryer (110-120V) equipped with a HEPA filter.
Mirror backlights operate on 100 – 240 VAC provided to quad (double-duplex) outlet (by others) concealed behind the cabinet into which a standard appliance power cord and AC adapters are plugged into at installation.
- Soap Requirements: Proper usage of this dispenser requires, that only soap within the following range for viscosity and pH may be used.
- Viscosity Range (mPa·s or cP): 100 – 3k
- pH Range: 5.5 ~ 8.5

